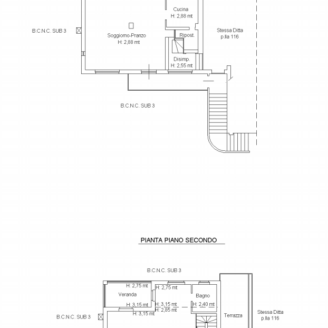
L’immobile è situato nella prima periferia di Sansepolcro e si colloca all’interno di un piccolo contesto trifamiliare; dotato di ingresso indipendente tramite scala esterna, si sviluppa su due livelli ed è così composto: ingresso, soggiorno e cucinotto separato, con possibilità di trasformare facilmente l’ambiente in un moderno e luminoso open space con angolo cottura e predisposizione per un primo bagno di servizio; al piano superiore ampio disimpegno che conduce alla terrazza abitabile e alla camera matrimoniale padronale, quest’ultima arricchita da una veranda privata e un secondo servizio dedicato.
Completa la proprietà una porzione di giardino privato.
La metratura generosa e la disposizione degli ambienti fanno sì che la casa si presti a una completa ridistribuzione interna, con la possibilità concreta di ricavare una seconda camera da letto, inoltre l’immobile gode di ottima esposizione che garantisce ambienti luminosi tutto il giorno.
Le immagini e i render eventualmente presenti sono da intendersi a puro scopo illustrativo e non costituiscono elemento contrattuale; potrebbero non rispecchiare le reali dimensioni, caratteristiche o parametri urbanistici.

















































